中古一戸建て 熊谷市上之
所在地
熊谷市上之
1,799万円
35.64坪
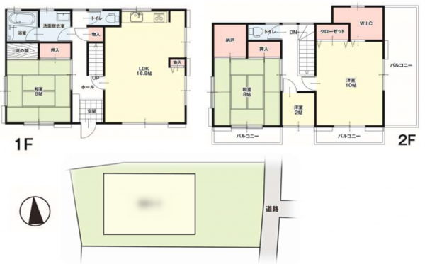
3SLDK
・ダイワハウス様邸工軽量鉄骨造物件です!
・閑静な住宅街で落ち着いて暮らせます!
・スーパーやコンビニ充実しております!
・ベルクフォルテ上之店 徒歩約13分!
・セブンイレブン熊谷上之店 約7分!
・熊谷総合病院 約20分!
物件概要
- 交通
-
高崎線 まで 徒歩37分
- 接道状況
- 東側 公道4.2m 間口約9.1m
- 土地面積
- 公簿 157.69㎡ (47.70坪)
- 建物面積
- 117.85㎡ (35.64坪)
- 築年数
-
1988年
(昭和63)
7月
築37年 - 建ぺい率
- 50%
- 容積率
- 80%
- 土地権利
- 所有権
- 構造および階数
- 軽量鉄骨造 地上2階建
- 小学校区
- 成田星宮 ( 450m )
- 中学校区
- 熊谷東 ( 1900m )
- 私道負担
- 無
- 地目
- 宅地
- 現況
- 空
- 引渡時期
- 相談
- 駐車場
- 有
- 上水道
- 公共
- 下水道
- 公共
- ガス
- 都市ガス
- 都市計画
- 市街化区域
- 用途地域
- 1種低層
- 設備・条件
- ウォークインクローゼット、駐車場2台分
- 備考
- リフォーム完工:2026年5月末日予定
- 取引態様
- 仲介





